Edgbaston -2 Bedroom House

18 Chancellors Close, Edgbaston, B15 3UJ

£385,000

2
1
1
360° Tour

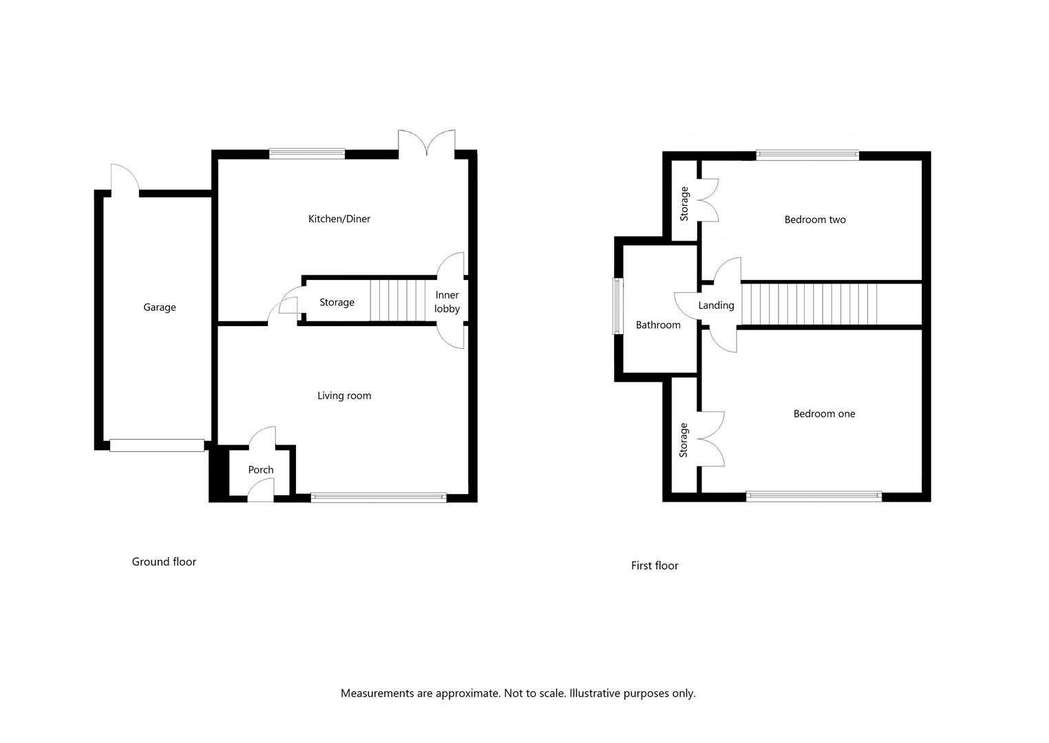
Set in the sought-after Calthorpe Estates location of Edgbaston and situated at the end of a cul-de-sac, this property occupies an enviable position. The peaceful surroundings offer a sense of privacy and tranquillity, making it an ideal retreat from the hustle and bustle of city life. Inside, the home boasts a living room, with its large windows allowing for plenty of natural light, a kitchen/diner that is designed with ample counter space, and two spacious bedrooms with built in storage. Outside, the delightful rear garden presents an excellent opportunity for outdoor dining and leisure, surrounded by lush greenery that enhances the sense of seclusion.

Chancellors Close is conveniently located leading off Oak Hill Drive, in turn leading off Hawthorne Road and Harborne Road. It is close to local shops in Chad Square, also regular transport services along Harborne Road to comprehensive City Centre leisure, entertainment and shopping facilities. It is also readily accessible to the Queen Elizabeth Hospital, the University of Birmingham and Harborne Leisure Centre, as well as excellent amenities on and around Harborne High Street.

A viewing is highly recommended in order to appreciate the accommodation and location.

Enquire