Edgbaston -3 Bedroom Apartment

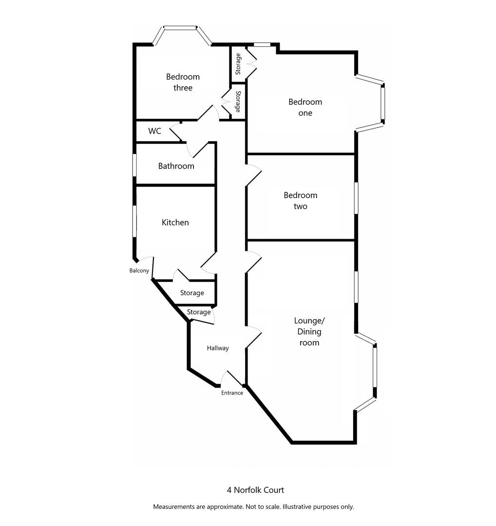
4 Norfolk Court Hagley Road, Edgbaston, B16 9LY

£225,000

3
1
1
360° Tour

First floor mansion style apartment having many delightful Art Deco original features retained throughout. This spacious property comprises large lounge/dining room, fitted kitchen, three bedrooms, bathroom, additional WC and shared rear balcony. Number 4 Norfolk Court is one of only two apartments in this development to have the benefit of a garage included, together with a parking space.

The property is very well-located for good transport connections into Birmingham City Centre with its host of facilities. The Queen Elizabeth Hospital and the MMUH are also within easy reach, as well as Birmingham University, Aston University and UCB. Edgbaston Village, the Midland Metro and Harborne are also within easy reach. Motorway connections to the M5 and M6 are also readily accessible.

Book A Viewing